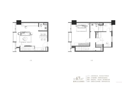
1室1厅1卫 建筑面积约67.00m²
-
楼盘均价:24000元/㎡
-
参考总价:161万左右
-
首付:32.2万左右
-
更新时间:2023-11-13




