服务热线:15928657177

金地旭辉·上观 别名:金地旭辉, 金地旭辉上观

售完

更新时间:2024-05-17    有7人感兴趣   

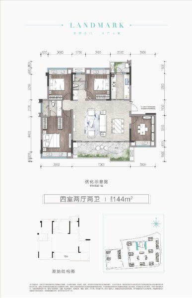
4室2厅2卫4室2厅2卫 住宅 售罄

售罄
  • 建筑面积
    144.00m²
  • 朝向
    暂无
  • 类型
    暂无
  • 层高
    暂无
  • 楼盘均价
    7000元/㎡
  • 参考总价
    100.8万元左右
  • 参考首付
    20.2万元左右
  • 参考月供
    5277元左右(20年)

了解4室2厅2卫 住宅 售罄户型的详细信息

服务热线

15928657177

(周一至周日全天)

淘房云服务

微信公众号:淘房云服务