在售
更新时间:2023-11-24 有6人感兴趣
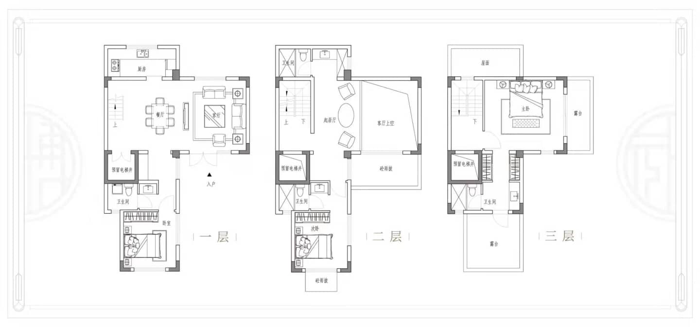
了解3室3厅4卫 别墅 在售户型的详细信息
服务热线
15928657177
(周一至周日全天)
微信公众号:淘房云服务
Copyright © 2010-2024 淘房云 All rights reserved.
蜀ICP备2021014614号 川公网安备 51079002110150号
{{item.nickname}} {{item.alias_name}} {{item.chat.time}}
{{item.chat | formatChat}}
{{item.content}}
{{item.time}}
电话 {{call_info.time_down}}s 后过期
{{call_info.time_down}}s
电话已过期 重新获取