服务热线:15928657177

在售

更新时间:2023-11-24    有6人感兴趣   

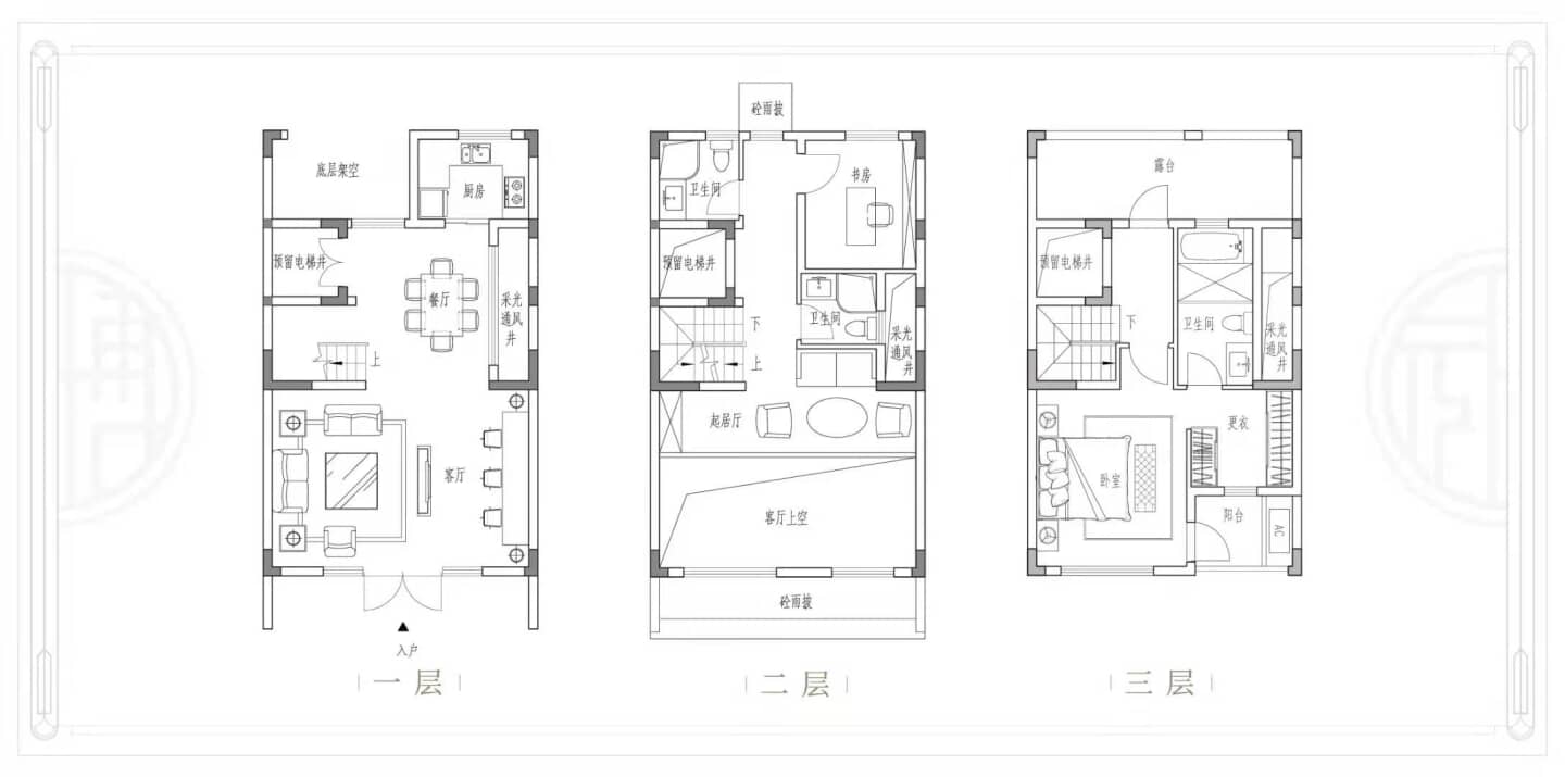
2室3厅3卫2室3厅3卫 别墅 在售

在售
  • 建筑面积
    136.00m²
  • 朝向
    暂无
  • 类型
    暂无
  • 层高
    暂无
  • 楼盘均价
    11500元/㎡
  • 参考总价
    156.4万元左右
  • 参考首付
    31.3万元左右
  • 参考月供
    8188元左右(20年)

了解2室3厅3卫 别墅 在售户型的详细信息

服务热线

15928657177

(周一至周日全天)

淘房云服务

微信公众号:淘房云服务